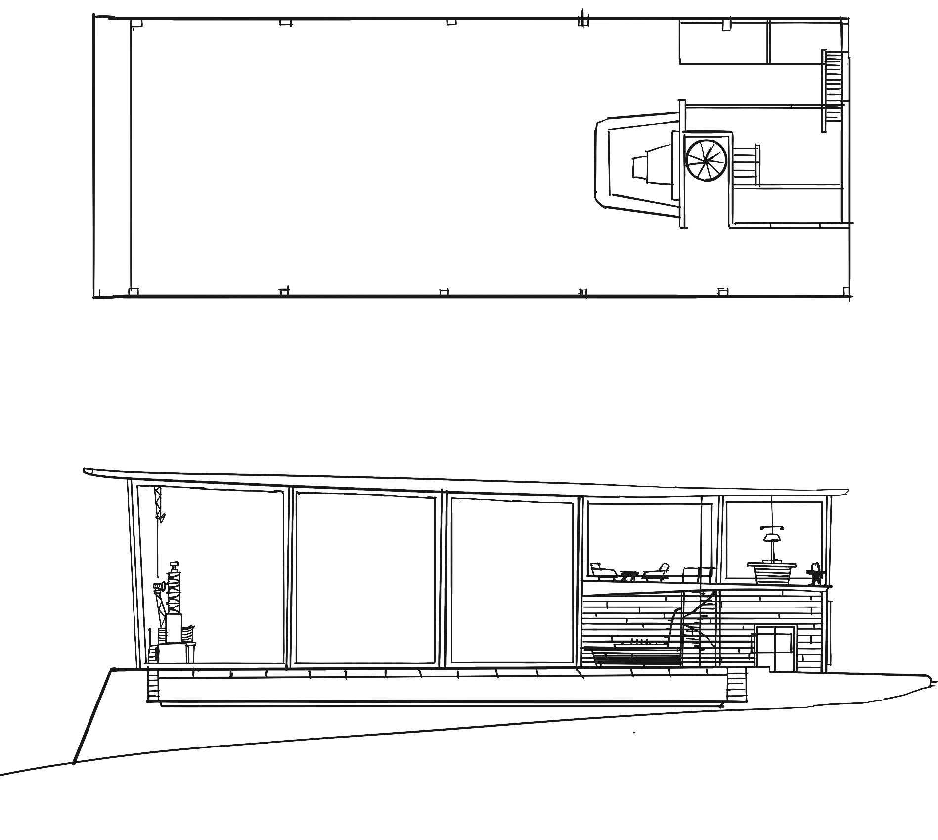
Practicing skills, exploration of new ideas, and visualizing goals for my future. These hand-drawn plans show my in-depth conceptual work, style, and aesthetics within architecture.

Next
Next

Stages